LIFE ReNatural NZEB

REHABILITACIÓN DE 4 VIVIENDAS SOCIALES EN SANTA ENGRACIA, BADAJOZ

El barrio de Santa Engracia se localiza en la zona norte de la ciudad. Construido en 1964, el barrio se proyectó con carácter provisional para dar alojamiento a los afectados por las inundaciones del Río Guadiana. El período máximo de ocupación previsto era 10 años y, pasado ese tiempo, los vecinos serían realojados en otras viviendas. Sin embargo, esa reubicación nunca llegó.   

Se trata de un tejido urbano homogéneo de 800 viviendas unifamiliares de una sola planta con patio, a las que se accede a través de un entramado de calles peatonales. La mayoría de las viviendas tienen 3 dormitorios, aunque algunas son más grandes y alcanzan los 4 dormitorios.

En este proyecto rehabilitación se han seleccionado cuatro de estas viviendas.

LIFE ReNatural NZEB

 

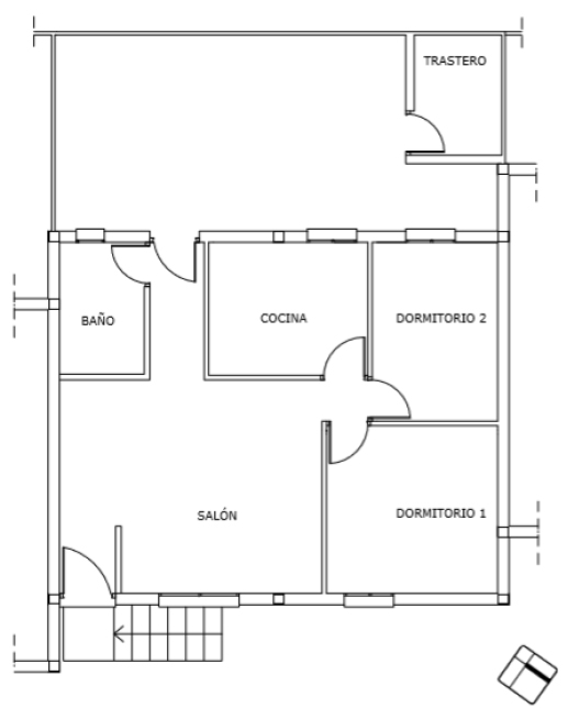
Vivienda 1

La vivienda 1 tiene orientación noreste-suroeste. Su morfología obedece a la tipología tradicional de viviendas unifamiliares en hilera del barrio de Santa Engracia, manteniendo casi intacta la distribución original del proyecto.

LIFE ReNatural NZEB

 

Vivienda 2

La vivienda 2 tiene una orientación noreste-suroeste. Aunque la morfología de la vivienda obedece a la tipología tradicional de viviendas unifamiliares en hilera del barrio de Santa Engracia, la distribución interior está completamente alterada respecto al proyecto original: se han añadido varios cuerpos edificados en el patio y se ha construido una planta alta. 

LIFE ReNatural NZEB

 

Vivienda 3

La vivienda 3, situada en esquina, tiene una orientación predominante norte-sur. Obedeciendo a la tipología tradicional de viviendas unifamiliares en hilera del barrio de Santa Engracia, la vivienda mantiene casi intacta la distribución del proyecto original. 

LIFE ReNatural NZEB

 

Vivienda 4

La vivienda 4 tiene una orientación noreste-suroeste. Aunque la morfología de la vivienda obedece a la tipología tradicional de viviendas unifamiliares en hilera del barrio de Santa Engracia, la distribución interior está ligeramente modificada respecto al proyecto original. 

LIFE ReNatural NZEB

 

Descripción de la intervención:

a) Fachadas. A la solución constructiva de las fachadas de las cuatro viviendas se incorporará un Sistema de Aislamiento Térmico por el Exterior (SATE) compuesto por panel rígido de aglomerado de corcho expandido, fijado al soporte mediante mortero con base de cal y fijaciones mecánicas.

Alt
Alt
Alt

 

b) Cubiertas. En todas las viviendas se procederá de forma similar. En primer lugar se desmontará la chapa de acero galvanizado existentes y se eliminará el asilamiento existente, sustituyéndolo por aislamiento a base de kenaf con barrera de vapor incorporada, sujeto mediante fijación mecánica al soporte existente.

Alt
Alt
Alt

 

c) Suelos. Por la configuración de las viviendas, no se altera la solución constructiva original de las edificaciones.

d) Carpinterías.  Las ventanas actuales, de aluminio sin rotura de puente térmico y vidrio simple, se sustituirán por ventanas de madera y doble acristalamiento.  

Alt
Alt
Alt

 

e) Estado actual de la rehabilitación.

Alt
Alt
Alt