LIFE ReNatural NZEB

REHABILITAÇÃO DE 4 CASAS SOCIAIS EM SANTA ENGRACIA, BADAJOZ

O bairro de Santa Engrcia está localizado na zona norte da cidade. Construído em 1964, o bairro previa abrigar os atingidos pelas enchentes do rio Guadiana. O período máximo de ocupação previsto era de 10 anos e, após esse período, os vizinhos seriam realocados em outras casas. No entanto, essa mudança nunca aconteceu.

Trata-se de uma malha urbana homogênea de 800 residências unifamiliares com pátio, acessadas por meio de uma rede de ruas pedestres. A maioria das casas tem 3 quartos, embora algumas sejam maiores e cheguem a 4 quartos.

Neste projeto de rehabilitação, quatro dessas casas foram selecionadas. 

LIFE ReNatural NZEB

 

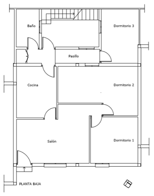
Casa 1

A casa 1 tem uma orientação nordeste-sudoeste. Possui a tipologia tradicional de moradias unifamiliares no bairro de Santa Engracia, mantendo a distribuição original quase intacta.

LIFE ReNatural NZEB

 

Casa 2

A casa 2 tem uma orientaçao nordeste-sudoeste. Embora tenha a tipologia de moradias unifamiliares no bairro de Santa Engracia. A distribuição interior econtra-se totalmente alterado em relação ao projeto original: forma acrescentados vários elementos no pátio e construído um piso alto.

LIFE ReNatural NZEB

 

Casa 3

A casa 3, localizada na esquina, tem uma orientação predominantemente norte-sul. Possui a tipologia tradicional de casas unifamiliares no bairro de Santa Engracia. A casa mantém a distribuição do projeto original quase intacta.

LIFE ReNatural NZEB

 

Casa 4

A casa 4 tem uma orientação nordeste-sudoeste. Embora a casa tenha a tipologia tradicional de casas geminadas unifamiliares no bairro de Santa Engracia, a distribuição interior é ligeiramente modificado em relação ao projeto original.

LIFE ReNatural NZEB

 

Descrição da intervenção:

a) Fachadas. Na solução construtiva das fachadas será incorporado um Sistema de Isolamento Térmico Exterior, constituído por um painel de aglomerado de cortiça expandida, fixado ao suporte por meio de argamassa com cal e fixações mecânicas.

Alt
Alt
Alt

 

b) Telhados. Em primeiro lugar, será desmontada a chapa de aço galvanizado existente e eliminado o isolamento existente, substituindo-o por isolamento kenaf com barreira de vapor, fixada mecanicamente ao suporte existente. 

Alt
Alt
Alt

 

c) Solos. Devido à configurção das casas, a solução construtiva original dos edifícios não é alterada.

d) Carpintaria. As janelas atuais são de alumínio sem ruptura térmica e vidrio simples. Estes serão substituídos por janelas de madeira e vidros duplos.

Alt
Alt
Alt

 

e) Estado atual de reabilitação.

Alt
Alt
Alt